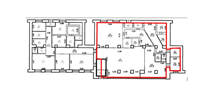
Аренда офиса 193.43 м2
Стоимость аренды
98262
руб./месяц
Код лота: РАД-436543. Реализуется на торгах.
Аренда нежилых помещений площадью 193,43 кв. м, входящих в состав нежилых помещений в здании (жилой дом, лит. А) , расположенных по адресу: Приморский край, пгт. Славянка, ул. 50 лет Октября, д. 8, площадью 359,3 кв. м, с кадастровым номером 25: 20: 000000: 3557, этаж: первый https: //catalog. lot-online. ru/index. php?dispatch=products. view&product_id=1584238 Общая стоимость: 98262 руб./месяц Общая площадь: 193 кв. м Этаж/этажность: 1/1 |
2182368 18 Декабря 2025 просмотров 1 |
Добавить комментарий
Похожие объявления













